Property Description
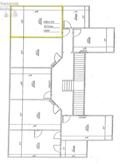
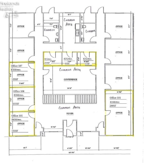
Multi-tenant office condominium has several single offices available to lease. All tenants enter through a shared main entrance that opens to a welcoming reception area. Lease includes use of common area conference room, two restrooms, and ktichenette/breakroom. Ample customer parking in front with additional employee parking in the back. Tenant pays gross lease and internet. Agent owned.
Features
- Waterfront:
- Yes
Address Map
- Country:
- US
- County:
- Hancock
- City:
- Findlay
- Zipcode:
- 45840
- Street:
- Fox Run Rd
- Street Number:
- 655
- Longitude:
- E0° 0' 0''
- Latitude:
- N0° 0' 0''
MLS Addon
- Office Name:
- Berkshire Hathaway HomeServices Koehler Realty
- Agent Name:
- James C Koehler II
- Property Subtype 1:
- Office
- Listing Agent MLS ID:
- JCKOEHLER
- Listing Office MLS ID:
- 1532
- Parcel ID:
- 570001009684
- Area:
- N/A
- Unit:
- B-105
Commercial For Lease
655 Fox Run Rd, Findlay, 45840
135 Sqft
$450
Listing ID #20261225
Basic Details
- Property Type :
- Commercial For Lease
- Listing Type :
- For Lease
- Listing ID :
- 20261225
- Price :
- $450
- Year Built :
- 1992
- Lot Area :
- 135 Sqft
- Status :
- Active
