Commercial For Lease
QR Code
Basic Details
Property Type:
Commercial For Lease
Listing Type:
For Lease
Listing ID:
20261226
Price:
$350
Year Built:
1992
Lot Area:
135 Sqft
Status:
Active
Features
Waterfront
Yes,
Address Map
Country:
US
County:
Hancock
City:
Findlay
Zipcode:
45840
Street:
Fox Run Rd
Street Number:
655
Longitude:
E0° 0' 0''
Latitude:
N0° 0' 0''
MLS Addon
Office Name:
Berkshire Hathaway HomeServices Koehler Realty
Agent Name:
James C Koehler II
Property Subtype 1
Office,
Listing Agent MLS ID:
JCKOEHLER
Listing Office MLS ID:
1532
Parcel ID:
570001009684
Area:
N/A
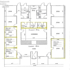
Unit:
B-106
Agent Info
Bonnigson & Associates
419 547 7777
419-547-78871570 W McPherson Hwy, Clyde, OH 43410