Property Description
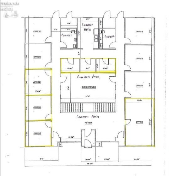
Investment opportunity awaits! This office building is part of an office condominium featuring multiple professional tenants. All occupants enter through a shared main entrance that opens to a welcoming reception area, stately conference room, kitchenette, and restrooms. All but five offices are currently leased, creating a strong and steady revenue stream. Tenant rights prevail. The property offers low maintenance ownership, with an annual condominium fee that covers snow removal and lawn care. Leases are gross, with tenants responsible for their own internet service. This set-up is perfect for an owner-operator.
Features
- Waterfront:
- Yes
Address Map
- Country:
- US
- County:
- Hancock
- City:
- Findlay
- Zipcode:
- 45840
- Street:
- Fox Run Rd
- Street Number:
- 655
- Longitude:
- E0° 0' 0''
- Latitude:
- N0° 0' 0''
MLS Addon
- Office Name:
- Berkshire Hathaway HomeServices Koehler Realty
- Agent Name:
- James C Koehler II
- Property Subtype 1:
- Office
- Listing Agent MLS ID:
- JCKOEHLER
- Listing Office MLS ID:
- 1532
- Parcel ID:
- 570001009684
- Area:
- N/A
- Unit:
- B
- Status Date:
- 03/03/2026
Commercial For Sale
655 Fox Run Rd, Findlay, 45840
1,000 Sqft
$525,000
Listing ID #20260660
Basic Details
- Property Type :
- Commercial
- Listing Type :
- For Sale
- Listing ID :
- 20260660
- Price :
- $525,000
- Year Built :
- 1992
- Lot Area :
- 1,000 Sqft
- Status :
- Active
