Contingent
Property Description
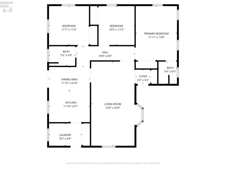
Charming and well-maintained home offering comfort, updates, and a peaceful setting! This 3-bedroom, 2-bath property sits on approximately one-third acre with a 2-car garage and a desirable layout including a primary suite with private bath. Recent updates include new plumbing, windows, and hot water heater, plus public water and sewer for added convenience.Enjoy the bright dining area with sliding glass doors leading to a deck, which steps down to a large concrete patio perfect for entertaining or relaxing. The backyard offers a country feel with farmland behind, creating a quiet and scenic backdrop. A shed with insulation and electric provides excellent storage or workspace. A truly clean, move-in-ready home in a desirable location!
Features
- Heating System:
- Forced Air
- Cooling System:
- Central
- Roof:
- Asphalt
- Water:
- Public
- Water Related:
- No
- Waterfront:
- No
- Parking Features:
- Attached, Garage Door Opener
- ExteriorConstruction:
- Aluminum
- Extras:
- Ceiling Fan, Dishwasher, Microwave, Range, Refrigerator, Thermo Pane, Dryer, Washer, Shed/storage, Gas Available
- Electricity:
- On
- # of Garage Spaces:
- 2
- Heat Source:
- Gas
- Sewer:
- Public Sewer
Address Map
- Country:
- US
- County:
- Erie
- City:
- Castalia
- Zipcode:
- 44824
- Street:
- Ronald
- Street Number:
- 3712
- Street Suffix:
- Drive
- Longitude:
- W83° 13' 12.4''
- Latitude:
- N41° 23' 50.6''
- Directions:
- Route 4 to Bogart Rd. to Ronald Drive. House on left.
MLS Addon
- Office Name:
- Simply Better Realty, LLC
- Agent Name:
- Kerri Hensel
- Property Subtype 1:
- Single Family Residence
- Listing Agent MLS ID:
- KHENSEL
- Listing Office MLS ID:
- 1728
- 1/2 Year Taxes:
- $1,013
- Tax Year:
- 2025
- Parcel ID:
- 3300438000
- Area:
- Margaretta
- Virtual Tour URL:
- https://new-horizon-media-findlay.aryeo.com/videos/019d912d-27ca-71d2-a5bf-aa6fb64fff80
- Substructure:
- Crawl Space
- School System:
- Margaretta
Residential For Sale
3712 Ronald Drive, Castalia, 44824
3 Bedrooms
2 Bathrooms
1,368 Sqft
$245,000
Listing ID #20261307
Basic Details
- Property Type :
- Residential
- Listing Type :
- For Sale
- Listing ID :
- 20261307
- Price :
- $245,000
- Bedrooms :
- 3
- Bathrooms :
- 2
- Square Footage :
- 1,368 Sqft
- Year Built :
- 1961
- Lot Area :
- 16,718 Sqft
- Full Bathrooms :
- 2
- Subdivision :
- Dee Allotment No 4
- Style:
- 1 Story
- Status :
- Contingent
